Secteur Albi/ Gaillac
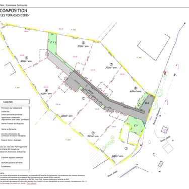
Les Terrasses d'Eden
Descriptif : Le nouveau programme « LES TERRASSES D'EDEN » se situe dans la jolie commune de Cestayrols, idéalement placé à 10 minutes de Gaillac et à 15 minutes d’Albi.
Le lotissement se compose de 8 lots, viabilisés en eau, électricité, télécom et tout à l’égout.
Les terrains : entre 570 et 850 m²
Informations complémentaires :
Taxe aménagement : 2.5 % communal, 1,8 % départemental, 0,40 % archéologique
Fibre en cours de déploiement
Ecole maternelle , école primaire à Fayssac (navette gratuite)
Bus Cestayrols/Gaillac
Lots disponibles :
Lot 1 : 600 m² - 39 000 €
Lot 2 : 700 m² - 47 000 €
Lot 3 : 600 m² - 44 000 €
Lot 4 : 620 m² - 48 000 €
Lot 5 : 850 m² - 57 000 €
Lot 6 : 570 m² - 46 000 €
Lot 7 : 700 m² - 48 000 €
Lot 8 : 600 m² - 44 000 €

Descriptif : terrain situé à Gaillac dans un quartier calme et recherché. Le terrain est plat et viabilisé : eau, électricité et tout à l’égout.
Commerces à proximité.
Atouts majeurs : le calme, l'orientation, terrain en ville.
Informations complémentaires : étude de sol G1 réalisée.
Localisation : Gaillac
Surface du terrain : 790 m²
SOUS COMPROMIS

Les Houms - lot 1
Descriptif : terrain situé à Gaillac dans un quartier calme et recherché. Le terrain est plat et viabilisé : eau, électricité et tout à l’égout.
Commerces à proximité.
Atouts majeurs : le calme, l'orientation, terrain en ville.
Informations complémentaires : étude de sol G1 réalisée.
Localisation : Gaillac
Surface du terrain : 908 m²
Prix : 69 000 €
Prix au m² : 76 €


Les Houms - lot 2
Descriptif : Ce programme se compose de seulement 3 lots, à 5 minutes de Gaillac et 20 minutes d’Albi. Le lotissement est situé au bas du village de Senouillac à 5 kms de GAILLAC.
Les lots sont viabilisés (eau potable, électricité, tout à l’égout, la fibre).
Le lotissement est prêt !
Atouts majeurs : le calme et la proximité immédiate de la ville de Gaillac, avantages des aménagements du lotissement.
Informations complémentaires : étude de sol G1 réalisée,
S
Localisation : Secteur Gaillac
Surface du terrain : 692 m²
Prix : 70 000 €




Le Clos des peupliers - lot 1
Localisation : Secteur Gaillac
Surface du terrain : 692 m²
VENDU
Descriptif : Ce joli programme se compose de seulement 3 lots, à 5 minutes de Gaillac et 20 minutes d’Albi. Le lotissement est situé au bas du village de Senouillac à 5 kms de GAILLAC.
Les lots sont viabilisés (eau potable, électricité, tout à l’égout, la fibre).
LE LOTISSEMENT EST PRET !
Atouts majeurs : le calme et la proximité immédiate de la ville de Gaillac, avantages des aménagements du lotissement
Informations complémentaires : étude de sol G1 réalisée




Le Clos des peupliers - lot 2
Surface du terrain : 1485 m²
Localisation : Secteur Gaillac
Surface du terrain : 1485 m² , dont 509 m² de constructible
Prix : COMPROMIS EN COURS
Prix au m² :
Descriptif : Ce joli programme se compose de seulement 3 lots, à 5 minutes de Gaillac et 20 minutes d’Albi. Le lotissement est situé au bas du village de Senouillac à 5 kms de GAILLAC.
Les lots sont viabilisés (eau potable, électricité, tout à l’égout, la fibre).
LE LOTISSEMENT EST PRET !
Atouts majeurs : le calme et la proximité immédiate de la ville de Gaillac, avantages des aménagements du lotissement.
Informations complémentaires : étude de sol G1 réalisée
Localisation : Secteur Gaillac
Surface du terrain : 1398 m² , dont 397 m² de constructible
Prix : VENDU
Prix au m² :




Le Clos des peupliers - lot 3
Descriptif :
1 terrain à bâtir d'environ 570 m² situé rue d'Alger, secteur prisé de Gaillac.
Viabilisé en : eau potable, électricité, tout à l'égoût.
Atouts majeurs : emplacement recherché et rare
Informations complémentaires : à proximité de toutes les commodités (commerces, école, collège, centre ville)
Localisation : Secteur Gaillac
Surface du terrain : 570 M²
SOUS COMPROMIS


Gaillac - Rue d'Alger

Descriptif :
1 terrain à bâtir d'environ 800 m² situé rue d'Alger, secteur prisé de Gaillac.
Viabilisé en : eau potable, électricité, tout à l'égoût, fibre.
Atouts majeurs : emplacement recherché et rare
Informations complémentaires : à proximité de toutes les commodités (commerces, école, collège, centre ville)
Localisation : Gaillac
Surface du terrain : 800 m²
Prix : SOUS OPTION


Gaillac : Rue d'Alger

Gaillac : Rue d'Alger


Localisation : Gaillac
Surface du terrain : 500 m²
Prix : 69 500 €
Prix au m² : 139 €
Descriptif :
1 terrain à bâtir d'environ 500 m² situé rue d'Alger, secteur prisé de Gaillac.
Viabilisé en : eau potable, électricité, tout à l'égoût, fibre.
Atouts majeurs : emplacement recherché et rare
Informations complémentaires : à proximité de toutes les commodités (commerces, école, collège, centre ville)

Gaillac : Rue d'Alger


Localisation : Gaillac
Surface du terrain : 600 m²
Prix : 72 000 €
Prix au m² : 120 €
Descriptif :
1 terrain à bâtir d'environ 600 m² situé rue d'Alger, secteur prisé de Gaillac.
Viabilisé en : eau potable, électricité, tout à l'égoût, fibre.
Atouts majeurs : emplacement recherché et rare
Informations complémentaires : à proximité de toutes les commodités (commerces, école, collège, centre ville)

Lotissement Les Sitelles - Gaillac - Lot 3
Localisation : Gaillac
Surfaces des lots : de 677 m²
VENDU
Prix au m² :
Descriptif :
Programme de 3 lots, situé à Gaillac.
Les 3 lots sont viabilisés (eau potable, tout à l'égout, électricité et fibre). Voirie.
TOUTES LES COMMODITES !
Atouts majeurs : emplacement recherché et rare
Informations complémentaires : bonne étude de sol G1,


Localisation : Gaillac
Surfaces des lots : 685 m²
Prix : VENDU
Prix au m² :
Les Sitelles - Gaillac - Lot 2
Descriptif :
Programme de 3 lots, situés à Gaillac.
Les 3 lots sont viabilisés (eau potable, tout à l'égout, électricité, fibre)
TOUTES LES COMMODITES !
Atouts majeurs : emplacement recherché et rare
Informations complémentaires : bonne étude de sol G1,


Les Sitelles - Gaillac - Lot 1

Descriptif :
Programme de 3 lots, situés à Gaillac.
Les 3 lots sont viabilisés (eau potable, tout à l'égout, électricité, fibre)
TOUTES LES COMMODITES !
Atouts majeurs : emplacement recherché et rare
Informations complémentaires : bonne étude de sol G1,
Localisation : Gaillac
Surfaces des lots : 677 m²
Prix : VENDU
Prix au m² :


Descriptif :
Lot à bâtir situés à Gaillac.
Viabilisé (eau potable, tout à l'égout, électricité)
TOUTES LES COMMODITES !
Atouts majeurs : emplacement recherché et rare
Informations complémentaires : bonne étude de sol G1,
Localisation : Gaillac
Surfaces des lots : 1439 m²
Prix : VENDU
Prix au m² :

Les Sitelles - Gaillac - Lot 4
Lotissement "SAINT-AMARAND" ALBI


Descriptif :
Dans un environnement calme et verdoyant, ce beau lotissement surplombe Albi et offre pour certains lots une belle vue sur la cathédrale Sainte-Cécile.
25 lots prêts à construire.
Viabilisés (eau potable, tout à l'égout, électricité et fibre).
Atouts majeurs : centre-ville à 5 minutes, accès rocade à 2 kms.
Informations complémentaires : livraison fin 2ème trimestre 2026
Localisation : ALBI
Surfaces des lots : 470 à 1790 m²
Moyenne des surfaces : 600 m²
Prix : à partir de 67 500 €
Prix au m² : 130 à 135 €
Terre & Pastel
73 avenue Saint-Exupéry
81600 GAILLAC
Contact
Téléphone : 06 17 39 32 78
email : contact@terre-et-pastel.com


